




Ricevere una notifica quando il prezzo di questo prodotto scende al di sotto del prezzo richiesto.
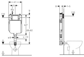
Prodotto: cassetta da incasso + placca + canotto di allacciamento Codice cassetta: 109.790.00.1 Codice placca: 115.770.11.5 Codice canotto di allacciamento: 118.221.11.1 Scheda tecnica Sigma 8 Geberit.pdf Disegno tecnico.jpeg Cassetta risciacquo da incasso Sigma 8 cm di Geberit, completa di placca sigma 01 di colore bianco e canotto di allacciamento bianco. La cassetta da incasso che non teme paragoni. Descrizione cassetta incasso Geberit Sigma 8 Cassetta di risciacquo da incasso con staffe di fissaggio e rubinetto d'arresto per il montaggio ad incasso per vasi a pavimento. Il risciacquo avviene attraverso il comando frontale. Progettata per una facile e veloce installazione ad incasso nelle pareti in muratura da 8 cm per una totale accessibilità. L'azionamento del risciacquo avviene tramite la placca di comando frontale. Geberit Sigma 8 è una cassetta di risciacquo ad incasso progettata per essere tra le migliori sul mercato. Con uno spessore di soli 8 cm, la cassetta è isolata contro la condensa grazie ad uno strato di polistirolo espanso da 4 mm apposto su entrambi i lati. Il contenuto d'acqua di 9 litri assicura un risciacquo rapido ed efficace per ogni tipologia di WC. L'ispezionabilità è totale ed è possibile estrarre con estrema facilità ogni componente senza l'ausilio di attrezzi. Inoltre la qualità di tali componenti garantisce affidabilità ed un funzionamento impeccabile nel tempo. Dal punto di vista della tecnologia, Geberit Sigma 8 è dotata del sistema TWICO che consente un notevole risparmio d'acqua grazie alla possibilità di regolazione del risciacquo (3/4 - 7,5/6/4,5 litri). Tra le altre caratteristiche: rubinetto d'arresto con posizionamento definito, filetto maschio da R 1/2' regolazione del tubo di risciacquo +2/-1 cm; rubinetto galleggiante IMPULS380 (Unifill); protezione cantiere parallela adattabile allo spessore della parete. Vantaggi cassetta incasso Geberit Sigma 8 Nuovo corpo cassetta super compatto per un'installazione semplice anche in condizioni di cantiere complicate Installazione senza necessità di attrezzi Efficienza dal punto di vista del risparmio idrico grazie alla regolazione della campana a 7,5/6/4,5 litri con tasto grande e 4/3 litri con tasto piccolo Massima versatilità per design, funzioni e opzioni di montaggio Nuova protezione cantiere a cornice che consente il montaggio delle placche a filo parete senza predisposizione Pezzi di ricambio garantiti per 25 anni Tecnologia idrosanitaria avanzata Confezione vendita La confezione di vendita include: 1 cassetta incasso Geberit Sigma 8, 1 placca bianca a due pulsanti rotondi Geberit Sigma 01, 1 canotto allacciamento completo. Con oltre 50 anni di esperienza nei sistemi di risciacquo ad incasso, Geberit è leader europeo nel settore della tecnologia idrosanitaria. Per maggiori informazioni sui prodotti visita il sito: www.geberit.it

Moderna, in legno, sospesa
Disponibile negli e-shop 2
DisponibileConsegna gratuita
In legno
Disponibile negli e-shop 3
DisponibileConsegna gratuita
In legno
Disponibile negli e-shop 2
DisponibileConsegna gratuita
In legno
Disponibile negli e-shop 3
DisponibileConsegna gratuita
Disponibile negli e-shop 2
DisponibileConsegna gratuita
In legno
Disponibile negli e-shop 2
DisponibileConsegna gratuita
In legno
Disponibile negli e-shop 3
DisponibileConsegna gratuita

Con specchio, con illuminazione, industriale
DisponibileConsegna gratuita
In legno
Disponibile negli e-shop 3
DisponibileConsegna gratuita
In legno
Disponibile negli e-shop 2
DisponibileConsegna gratuita


In rovere, industriale, in legno
DisponibileConsegna gratuita

Lucido, industriale, in legno
DisponibileConsegna gratuita
Con specchio, con illuminazione, industriale
DisponibileConsegna gratuita
In legno
DisponibileConsegna gratuita